
Es gibt viel ungenutzten Wohnraum in der Krefelder Innenstadt. Innerhalb der Vier Wälle stehen 368 Wohnungen leer, und im erweiterten Innenstadtbereich sind es sogar 1254. Zu den offiziellen Zahlen kommen zahlreiche Wohnungen, die garnicht mehr als Solche erfasst sind, zum Beispiel, weil sie als Teil einer Ladenfläche im Erdgeschoss vermietet werden, aber gar nicht genutzt werden. Und dann gibt es natürlich noch zahlreiche Brachflächen, Baulücken und Grundstücke, die nur im Erdgeschoss bebaut sind.
Die Stadtreparatur Krefeld gGmbH bringt versteckte Möglichkeiten ans Licht. Gemeinsam mit den Eigentümern stoßen wir Projekte an und begleiten sie, um mehr begehrenswerten innerstädtischen Wohnraum zu schaffen. Wir helfen dabei, mit den Fassaden das Stadtbild aufzuwerten und den Straßenraum durch interessante Nutzungen im Erdgeschoss zu beleben. Orte, an denen viele Menschen wohnen und arbeiten finden wir interessanter und gemütlicher als ein reines Einkaufs- und Dienstleistungszentrum.
Die Stadtreparatur Krefeld gGmbH steht nicht in Konkurrenz zu lokalen Playern. Im Gegenteil. Wir suchen die Zusammenarbeit mit lokalen Eigentümern, Architekten, Handwerkern usw. und zeigen ausgerechnet dort neue Perspektiven auf, wo Ratlosigkeit herrscht. Wir schaffen Raum für unternehmungslustige und kreative Menschen, die den urbanen Lebensraum entdecken und mit der nötigen Menge Enthusiasmus und Durchhaltevermögen aktiv bei dessen Gestaltung mitmischen wollen.

Direkt gegenüber vom Kaiser-Wilhelm-Museum wurde im Hinterhaus die prachtvolle Stuckdecke eines historischen Festsaals entdeckt. Dank einer privaten Initiative aus Fachleuten, Restauratoren und Architekten konnte die Decke jetzt mit öffentlichen Fördermitteln gesichert und restauriert werden.
In Zusammenarbeit mit der Stadtreparatur Krefeld gGmbH wurde ein möglichst flexibles Nutzungskonzept entwickelt. Im Erdgeschoss sollen drei separat und gekoppelt nutzbare Einheiten entstehen. Im Vorderhaus und im ersten Flügelanbau werden vier Wohnungen entwickelt, mit grünen Terrassen oder Balkonen und mit besonderem Altbau Charme.



Die Axel-Vater-Stiftung setzt sich dafür ein, das vielseitige Werk des Künstlers Axel Vater lebendig zu halten – von Zeichnungen und Malerei über Collagen, Materialbilder und Objekte bis hin zu Skulpturen und Fotografie. Dazu gehört nicht nur die Pflege und Dokumentation seiner Arbeiten, sondern auch ihre Präsentation in Ausstellungen und Publikationen. www.axelvaterstiftung.de
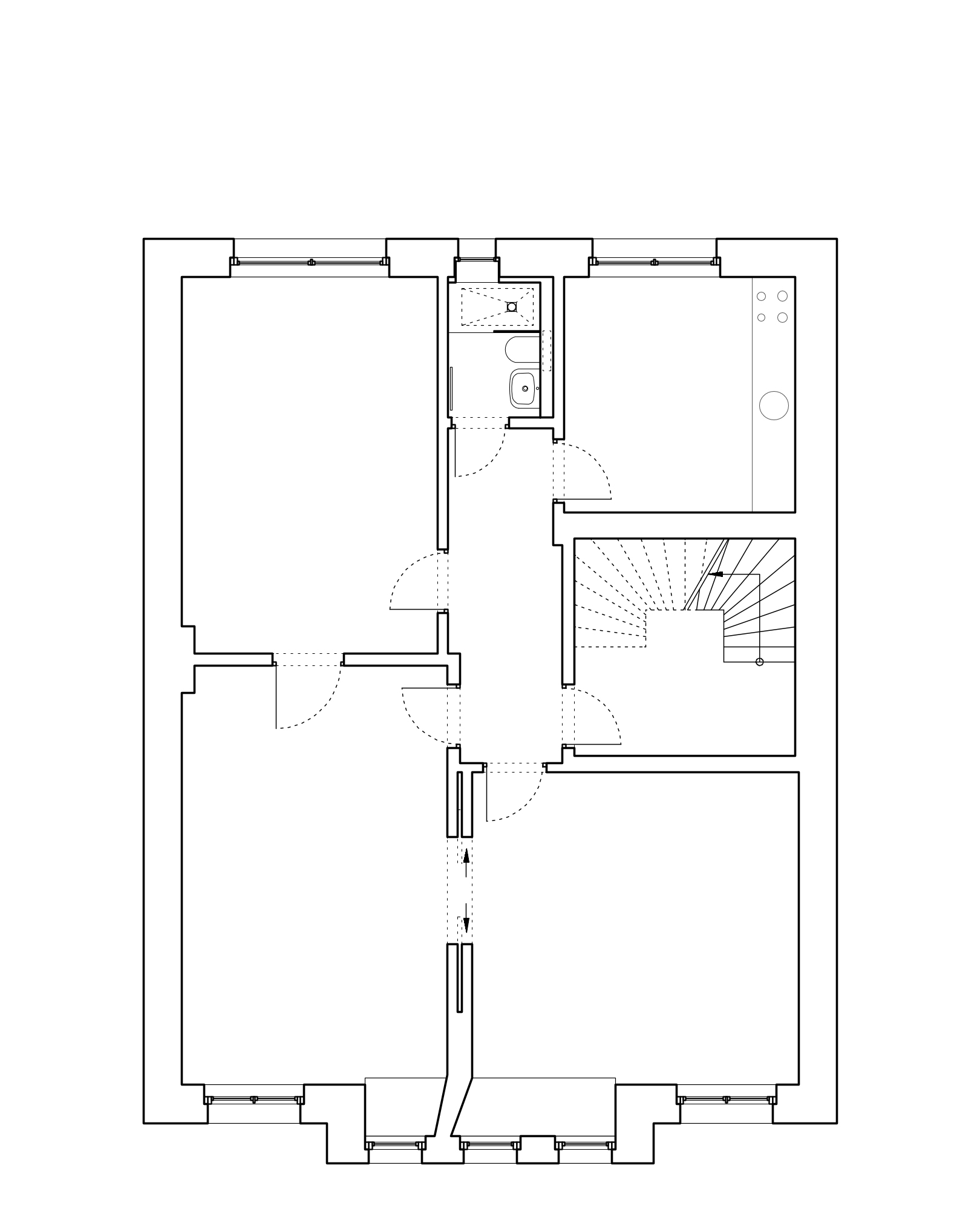
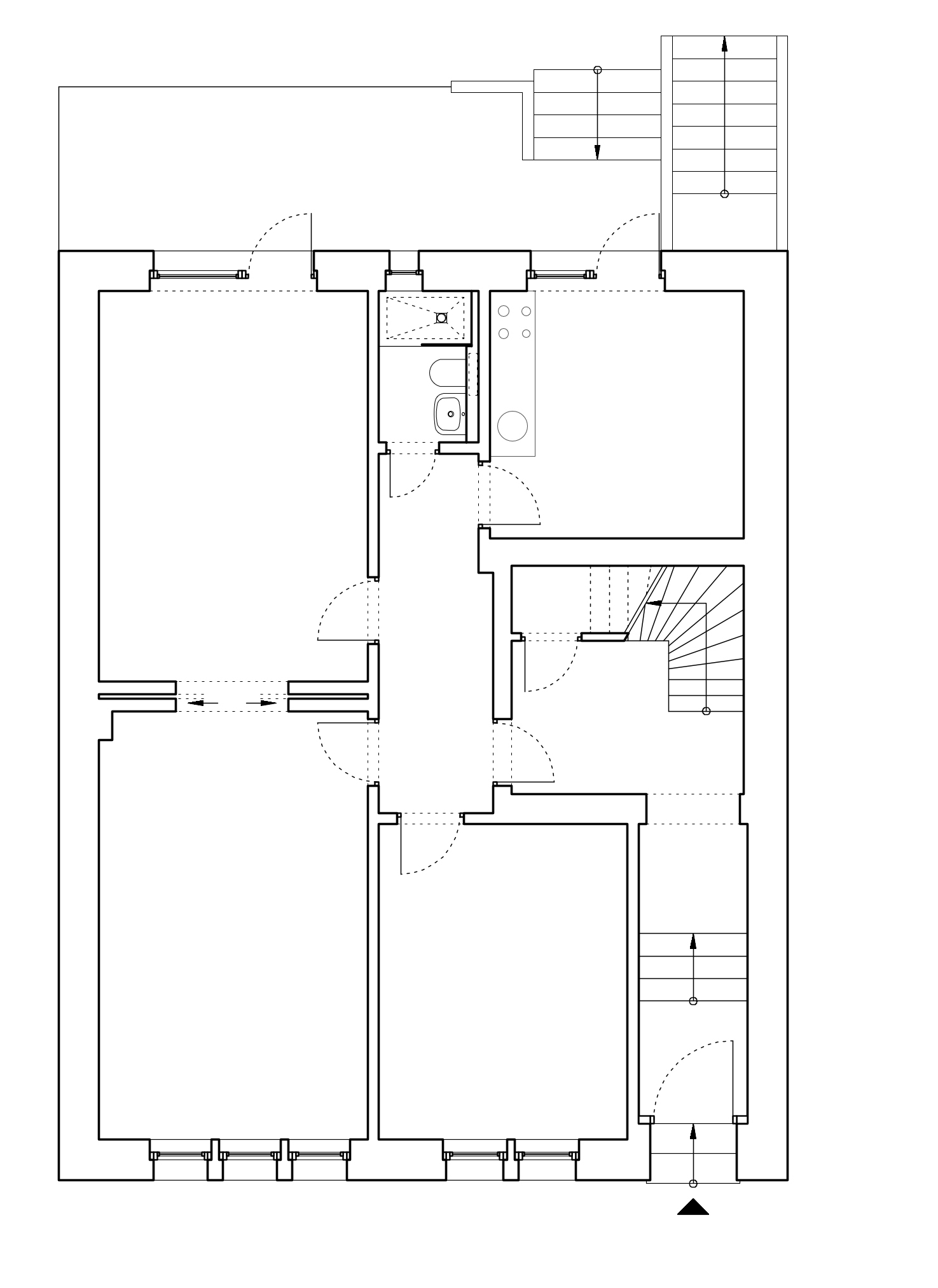
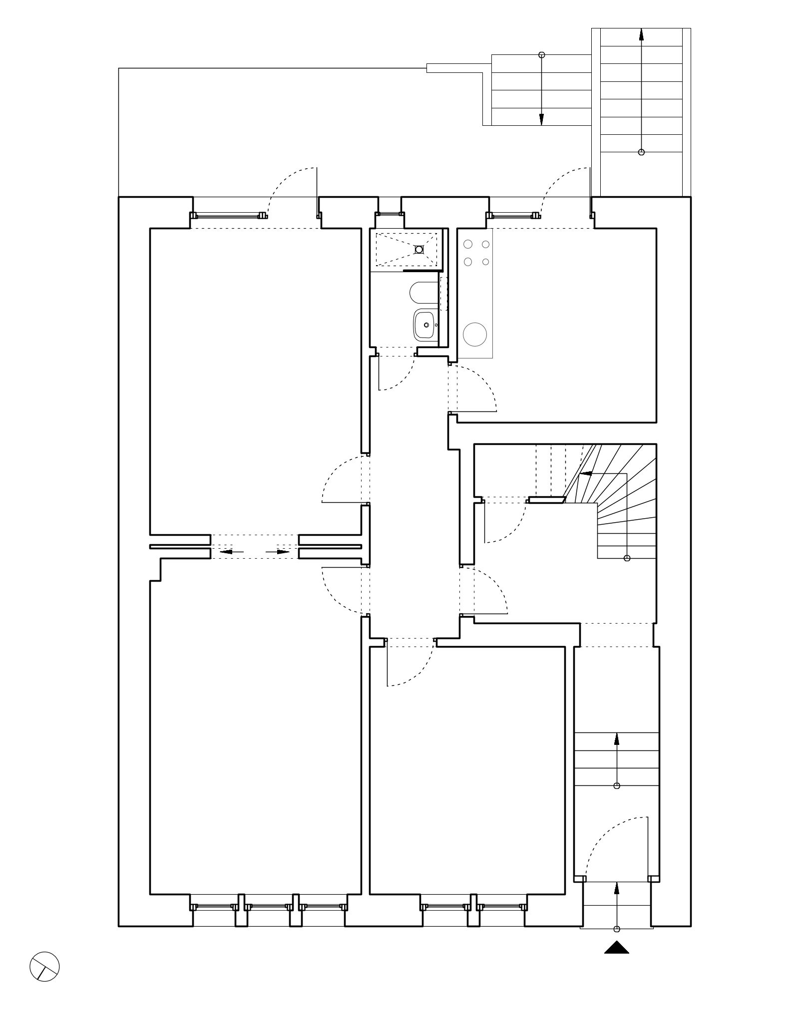
Mit Unterstützung der Stadtreparatur Krefeld gGmbH wurden inzwischen die beiden Wohnungen im ehemaligen Haus des Künstlers renoviert – inklusive neuer Bäder. Beide Wohnungen sind bereits vermietet, und als Nächstes steht das Atelier auf dem Plan:
Nach einem kleinen Umbau soll hier künftig erlebbar werden, wie Axel Vater gearbeitet hat. Gleichzeitig entsteht Raum für die weitere Arbeit der Stiftung – und für neue Formate wie Workshops, in denen Kreativität, Austausch und künstlerisches Experiment im Mittelpunkt stehen.







Die Anlage der Vier Wälle ist 200 Jahre alt. Allen Veränderungen zum Trotz ist die noch immer erkennbar und stellt einen wichtigen Identifikationsort für die Krefelder Bürger dar. Das Gebiet innerhalb der Vier Wälle jedoch ist noch viel älter und war bisher unerforschtes Territorium. Es besteht aus einem kleinen spätmittelalterlichen Stadtkern, umschlossen von einer regelmässigen Planstadt aus barocken Stadterweiterungen des 17. und 18. Jahrhunderts. Nach der Zerstörung 1943 wurde die Innenstadt im Wesentlichen nach dem alten Straßenmuster und mit der gleichen Bebauungsstruktur wieder aufgebaut.

Es gibt viel ungenutzten Wohnraum in der Krefelder Innenstadt. Innerhalb der Vier Wälle stehen 368 Wohnungen leer, und im erweiterten Innenstadtbereich sind es sogar 1254. Zu den offiziellen Zahlen kommen zahlreiche Wohnungen, die garnicht mehr als Solche erfasst sind, zum Beispiel, weil sie als Teil einer Ladenfläche im Erdgeschoss vermietet werden, aber gar nicht genutzt werden. Und dann gibt es natürlich noch zahlreiche Brachflächen, Baulücken und Grundstücke, die nur im Erdgeschoss bebaut sind.
Die Stadtreparatur Krefeld gGmbH bringt versteckte Möglichkeiten ans Licht. Gemeinsam mit den Eigentümern stoßen Projekte an und begleiten sie, um mehr begehrenswerten innerstädtischen Wohnraum zu schaffen. Wir helfen dabei, mit den Fassaden das Stadtbild aufzuwerten und den Straßenraum durch interessante Nutzungen im Erdgeschoss zu beleben. Orte, an denen viele Menschen wohnen und arbeiten, finden wir interessanter und gemütlicher als ein reines Einkaufs- und Dienstleistungszentrum.
Die Stadtreparatur Krefeld gGmbH steht nicht in Konkurrenz zu lokalen Playern. Im Gegenteil. Wir suchen die Zusammenarbeit mit lokalen Eigentümern, Architekten, Handwerkern usw. und zeigen ausgerechnet dort neue Perspektiven auf, wo Ratlosigkeit herrscht. Wir schaffen Raum für unternehmungslustige und kreative Menschen, die den urbanen Lebensraum entdecken und mit der nötigen Menge Enthusiasmus und Durchhaltevermögen aktiv bei dessen Gestaltung mitmischen wollen.


Die Anlage der Vier Wälle ist 200 Jahre alt. Allen Veränderungen zum Trotz ist die noch immer erkennbar und stellt einen wichtigen Identifikationsort für die Krefelder Bürger dar. Das Gebiet innerhalb der Vier Wälle jedoch ist noch viel älter und war bisher unerforschtes Territorium. Es besteht aus einem kleinen spätmittelalterlichen Stadtkern, umschlossen von einer regelmässigen Planstadt aus barocken Stadterweiterungen des 17. und 18. Jahrhunderts. Nach der Zerstörung 1943 wurde die Innenstadt im Wesentlichen nach dem alten Straßenmuster und mit der gleichen Bebauungsstruktur wieder aufgebaut.

Direkt gegenüber vom Kaiser-Wilhelm-Museum wurde im Hinterhaus die prachtvolle Stuckdecke eines historischen Festsaals entdeckt. Dank einer privaten Initiative aus Fachleuten, Restauratoren und Architekten konnte die Decke jetzt mit öffentlichen Fördermitteln gesichert und restauriert werden.
In Zusammenarbeit mit der Stadtreparatur Krefeld gGmbH wurde ein möglichst flexibles Nutzungskonzept entwickelt. Im Erdgeschoss sollen drei separat und gekoppelt nutzbare Einheiten entstehen. Im Vorderhaus und im ersten Flügelanbau werden vier Wohnungen entwickelt, mit grünen Terrassen oder Balkonen und mit besonderem Altbau Charme.



Die Anlage der Vier Wälle ist 200 Jahre alt. Allen Veränderungen zum Trotz ist die noch immer erkennbar und stellt einen wichtigen Identifikationsort für die Krefelder Bürger dar. Das Gebiet innerhalb der Vier Wälle jedoch ist noch viel älter und war bisher unerforschtes Territorium. Es besteht aus einem kleinen spätmittelalterlichen Stadtkern, umschlossen von einer regelmässigen Planstadt aus barocken Stadterweiterungen des 17. und 18. Jahrhunderts. Nach der Zerstörung 1943 wurde die Innenstadt im Wesentlichen nach dem alten Straßenmuster und mit der gleichen Bebauungsstruktur wieder aufgebaut.


Die Anlage der Vier Wälle ist 200 Jahre alt. Allen Veränderungen zum Trotz ist die noch immer erkennbar und stellt einen wichtigen Identifikationsort für die Krefelder Bürger dar. Das Gebiet innerhalb der Vier Wälle jedoch ist noch viel älter und war bisher unerforschtes Territorium. Es besteht aus einem kleinen spätmittelalterlichen Stadtkern, umschlossen von einer regelmässigen Planstadt aus barocken Stadterweiterungen des 17. und 18. Jahrhunderts. Nach der Zerstörung 1943 wurde die Innenstadt im Wesentlichen nach dem alten Straßenmuster und mit der gleichen Bebauungsstruktur wieder aufgebaut.




Die Anlage der Vier Wälle ist 200 Jahre alt. Allen Veränderungen zum Trotz ist die noch immer erkennbar und stellt einen wichtigen Identifikationsort für die Krefelder Bürger dar. Das Gebiet innerhalb der Vier Wälle jedoch ist noch viel älter und war bisher unerforschtes Territorium. Es besteht aus einem kleinen spätmittelalterlichen Stadtkern, umschlossen von einer regelmässigen Planstadt aus barocken Stadterweiterungen des 17. und 18. Jahrhunderts. Nach der Zerstörung 1943 wurde die Innenstadt im Wesentlichen nach dem alten Straßenmuster und mit der gleichen Bebauungsstruktur wieder aufgebaut.
Die Axel-Vater-Stiftung setzt sich dafür ein, das vielseitige Werk des Künstlers Axel Vater lebendig zu halten – von Zeichnungen und Malerei über Collagen, Materialbilder und Objekte bis hin zu Skulpturen und Fotografie. Dazu gehört nicht nur die Pflege und Dokumentation seiner Arbeiten, sondern auch ihre Präsentation in Ausstellungen und Publikationen. www.axelvaterstiftung.de
Mit Unterstützung der Stadtreparatur Krefeld gGmbH wurden inzwischen die beiden Wohnungen im ehemaligen Haus des Künstlers renoviert – inklusive neuer Bäder. Beide Wohnungen sind bereits vermietet, und als Nächstes steht das Atelier auf dem Plan:
Nach einem kleinen Umbau soll hier künftig erlebbar werden, wie Axel Vater gearbeitet hat. Gleichzeitig entsteht Raum für die weitere Arbeit der Stiftung – und für neue Formate wie Workshops, in denen Kreativität, Austausch und künstlerisches Experiment im Mittelpunkt stehen.




Die Anlage der Vier Wälle ist 200 Jahre alt. Allen Veränderungen zum Trotz ist die noch immer erkennbar und stellt einen wichtigen Identifikationsort für die Krefelder Bürger dar. Das Gebiet innerhalb der Vier Wälle jedoch ist noch viel älter und war bisher unerforschtes Territorium. Es besteht aus einem kleinen spätmittelalterlichen Stadtkern, umschlossen von einer regelmässigen Planstadt aus barocken Stadterweiterungen des 17. und 18. Jahrhunderts. Nach der Zerstörung 1943 wurde die Innenstadt im Wesentlichen nach dem alten Straßenmuster und mit der gleichen Bebauungsstruktur wieder aufgebaut.

